2d cad drawing of corner type house 2 autocad software
Description
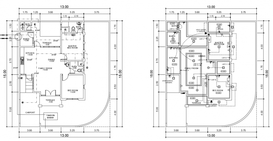
2d cad drawing of corner type house 2 autocad software that has family room with dining area and open kitchen with both side balcony view and other balconty with seprate maid room with toilet area.two bedrooms with seprate toilet area and on e common toilet area for one bedroom acess and family room common usage and other drawing with hatching done for particular area in the drawing with point unit mentioned.
Uploaded by:
Eiz
Luna

